Premium New development

2 Bed Apartment for sale

Valras-Plage, Herault, Languedoc-Roussillon, France

£201,676 *  [€231,000]

2 Bed Apartment for sale

Valras-Plage, Herault, Languedoc-Roussillon, France

£201,676 *  [€231,000]

Property Details


  • Bedrooms: 2
  • Bathrooms: 1

Features


  • Terrace
  • Parking
  • Electric heating

Full Description


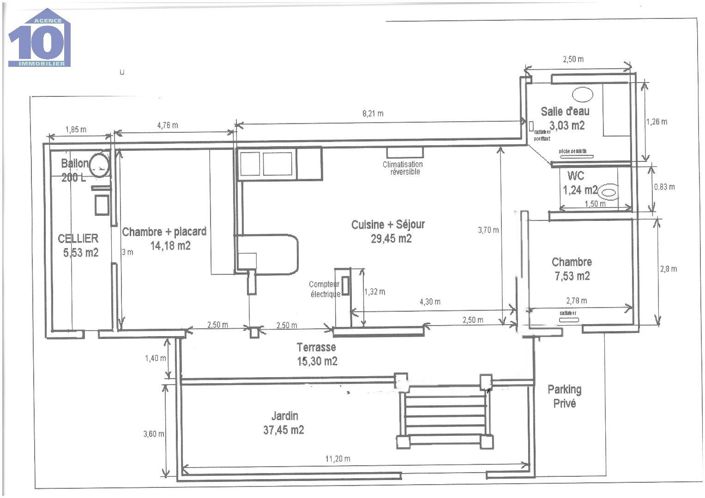
In a small recent condominium of 6 apartments, only 12 minutes walk from the city center and the beach, this T3 on the ground floor will seduce you with its calm, its brightness and its functional layout. The single-storey apartment opens onto a spacious living room of 30m² with equipped American kitchen and plenty of storage, all extended by a sunny terrace with awning and a garden with interlocking paving stones. On the night side, two bedrooms with cupboards and access to the terrace, a bathroom with window, independent suspended toilet, as well as an adjoining laundry room or dressing room. The property benefits from private parking, open views and a peaceful setting in the immediate vicinity of amenities. Low charges, good general condition, ideal for living all year round or as a second home.
Read more

Map may not show exact location

This property listing (ref: Aji1vavh6wkbpxdj) is an advertisement supplied by French Gold Property and does not constitute property particulars. While aplaceinthesun.com (APITS Ltd.) requests all advertisers supply correct details, it does not carry out checks on the information supplied and cannot be held responsible for any inaccuracies. Aplaceinthesun.com recommends seeking independent legal advice prior to any overseas property purchase.
*Based on an exchange rate of 0.8731 from Euro to GBP. This rate is updated daily and is an indicative market rate supplied by A Place in the Sun Currency. Actual trading rates vary.