Premium New development

3 Bed Property for sale

Volos, Magnesia, Thessaly, Greece

£91,671 *  [€105,000]

3 Bed Property for sale

Volos, Magnesia, Thessaly, Greece

£91,671 *  [€105,000]

Property Details


  • Bedrooms: 3
  • Bathrooms: 1
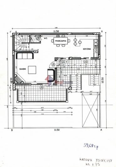
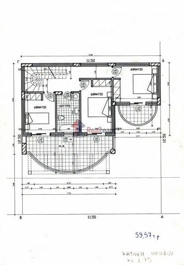
  • Habitable space: 204 m2

Features


  • 3 levels
  • Front facing
  • Under construction
  • Balconies
  • Sea view
  • Roof terrace
  • Garden
  • Parking space
Read more

Full Description


Real estate consultant Fortuna Ioanna.

Available for sale is a three-level, unfinished, two-story detached house, with a total area of 204 sq.m., on a plot of 144 sq.m., in the area of New Pagases, in Volos city. The detached house is front-facing and extremely bright and consists of 2 floors and 3 levels (basement, ground floor and first floor).

It is under construction, which started in 2005. The distribution of the levels is divided as follows: in the basement of 72 m2, there is the warehouse of the house. On the ground floor area of 60 sq.m. there can be configured the living room, the kitchen and the WC, while on the first floor, also with an area of 60 sq.m., the 3 bedrooms and the bathroom are configured.

Externally, the property has spacious, round balconies with a sea view, as well as a roof terrace of 12 sq.m. approximately, which can be used as you wish. There is also a garden, ideal for children and pets, as well as a parking space. Its orientation is south and it is just a few meters from the beach, while it is very close to the local market and the super markets of the area.

The under-construction condition of the property, gives you the possibility to configure a residence according to your own preferences and needs, while its location, in the beautiful and quiet area of Nees Pagases, just a "breath" away from the sea, make it an ideal choice for housing and accommodation.
Read more

Map may not show exact location

This property listing (ref: 1552015) is an advertisement supplied by RealTeam and does not constitute property particulars. While aplaceinthesun.com (APITS Ltd.) requests all advertisers supply correct details, it does not carry out checks on the information supplied and cannot be held responsible for any inaccuracies. Aplaceinthesun.com recommends seeking independent legal advice prior to any overseas property purchase.
*Based on an exchange rate of 0.8731 from Euro to GBP. This rate is updated daily and is an indicative market rate supplied by A Place in the Sun Currency. Actual trading rates vary.