Premium New development

3 Bed Property for sale

Paphos, Paphos, Cyprus

£401,606 *  [€460,000]

3 Bed Property for sale

Paphos, Paphos, Cyprus

£401,606 *  [€460,000]

Property Details


  • Bedrooms: 3
  • Bathrooms: 2
  • Habitable space: 123 m2

Full Description


?? Off-Plan 3-Bedroom Penthouse in Geroskipou, Paphos
? A modern retreat blending comfort, style, and convenience — just minutes from the coast, city center, and nature.

?? Location: Geroskipou, Paphos
?? Status: Off-Plan (Planning Permit Pending)
?? Delivery: 18 months from construction start
?? Price is subject to VAT (5% VAT is applicable criteria applies)
?? Energy Efficiency: Category A+

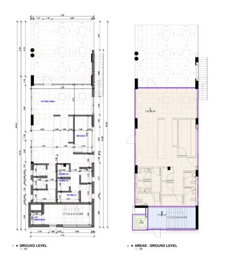
?? Property Details
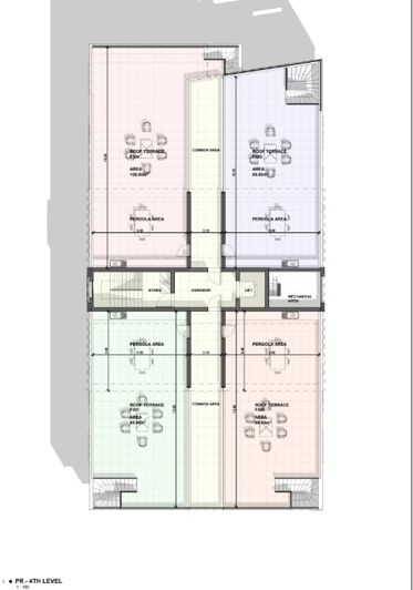
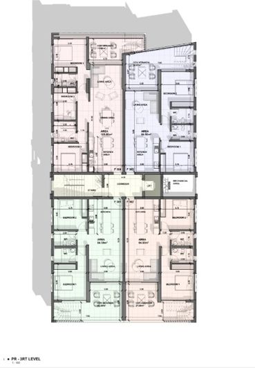
3rd floor (apartment facing pool)
Private rooftop terrace
Bedrooms: 3
Bathrooms: 2
Internal Covered Area: 109 m²
Covered Veranda: 11.5 m²
Storage Room: 2 m²
Total Covered Area: 122.5 m²
Communal Swimming Pool: 9 × 16 meters
Covered Parking: Yes

?? Project Overview
This contemporary development offers a collection of stylish residences — from studios to spacious 3-bedroom apartments — designed to combine modern living with green surroundings.
Featuring energy-efficient construction (A+), photovoltaic system options, and exceptional lifestyle amenities, this is an ideal choice for those seeking comfort, community, and long-term value.

?? Features & Specifications
Communal Swimming Pool
Covered Parking & Private Storage Room
AC units in all rooms
Double-glazed windows
Electric shutters in bedrooms
High-quality kitchen cabinets & wardrobes
Gated entrance & intercom system
Provision for electric car charging station
Option for photovoltaic panels
Rooftop garden & landscaped communal areas

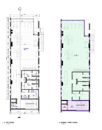
?? Lifestyle Amenities
Gym & Yoga Studio
Spa & Sauna
Café & Lounge Area
Playground & Public Park
Walking Paths & Drop-off Zone
Lobby & Internal Roads
A thoughtfully designed environment that promotes wellness, community, and a sense of belonging.

?? Prime Location
Cabana Beach – 7 min
Paphos Center – 6 min
Lumio School – 7 min
Neon Mall – 4 min
Highway to Limassol – 5 min
Paphos International Airport – 15 min

?? Investment Highlights
Located in one of Paphos’ fastest-growing areas
Strong potential for capital appreciation
High rental demand for both short- and long-term stays
Flexible purchase terms and payment plans available
Premium amenities that enhance lifestyle and long-term value
Read more

Map may not show exact location

This property listing (ref: LUEP-B304) is an advertisement supplied by Sunshine Luxury Villas and does not constitute property particulars. While aplaceinthesun.com (APITS Ltd.) requests all advertisers supply correct details, it does not carry out checks on the information supplied and cannot be held responsible for any inaccuracies. Aplaceinthesun.com recommends seeking independent legal advice prior to any overseas property purchase.
*Based on an exchange rate of 0.8731 from Euro to GBP. This rate is updated daily and is an indicative market rate supplied by A Place in the Sun Currency. Actual trading rates vary.