Premium New development

2 Bed Apartment for sale

Villajoyosa-La Vila Joíosa, Alicante, Valencia, Spain

£234,852 *  [€269,000]

2 Bed Apartment for sale

Villajoyosa-La Vila Joíosa, Alicante, Valencia, Spain

£234,852 *  [€269,000]

Property Details


  • Bedrooms: 2
  • Bathrooms: 2
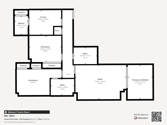
  • Plot size: 93 m2
  • Habitable space: 81 m2

Features


  • Swimming Pool
  • Lift
  • Air Conditioning
  • Furnished
  • Double-glazed Windows
  • Terrace
  • Children's Play Area
Read more

Full Description


Flat for Sale in La Cala de Villajoyosa

Located in one of the most peaceful and sought-after areas of the coast, this 93 m² property (81 m² usable) offers the perfect balance of comfort and location.

It features 2 bedrooms with fitted wardrobes, 2 full bathrooms, a bright living room with access to a south-facing glazed terrace, and a fully equipped independent kitchen with utility area.

Highlights include ducted air conditioning, double-glazed windows and excellent overall condition. Sold furnished and ready to move into.

The price also includes a private parking space with direct lift access. The residence offers a communal pool and well-kept shared areas — ideal for enjoying the Mediterranean climate.

A unique opportunity for those seeking a home near the sea in a privileged setting.

Call us today to arrange your visit — this flat in La Cala de Villajoyosa could be your next home!
Read more

Map may not show exact location

This property listing (ref: 18012) is an advertisement supplied by Visual Home and does not constitute property particulars. While aplaceinthesun.com (APITS Ltd.) requests all advertisers supply correct details, it does not carry out checks on the information supplied and cannot be held responsible for any inaccuracies. Aplaceinthesun.com recommends seeking independent legal advice prior to any overseas property purchase.
*Based on an exchange rate of 0.8731 from Euro to GBP. This rate is updated daily and is an indicative market rate supplied by A Place in the Sun Currency. Actual trading rates vary.