Premium New development

3 Bed Apartment for sale

Cannes, Alpes-Maritimes, Provence-Alpes-Cote d'Azur, France

£563,122 *  [€645,000]

3 Bed Apartment for sale

Cannes, Alpes-Maritimes, Provence-Alpes-Cote d'Azur, France

£563,122 *  [€645,000]

Property Details


  • Bedrooms: 3
  • Bathrooms: 3

Features


  • Balcony
  • Electric heating

Full Description


Come and discover this apartment on rue Georges Clemenceau in Cannes.

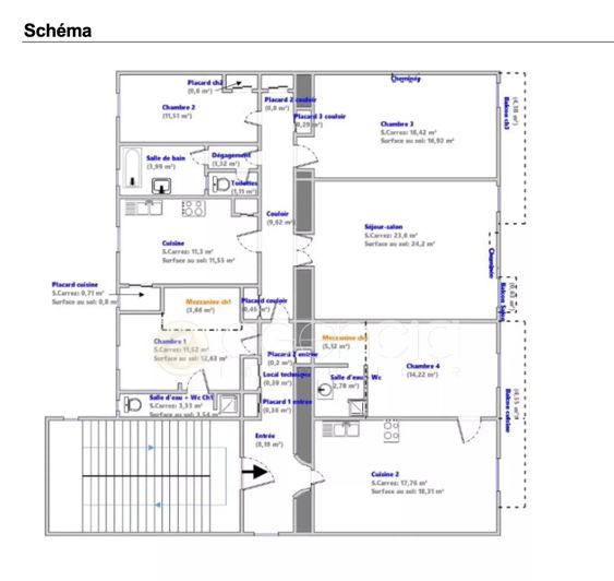
Sale includes 1 lot. 140 m2 flat on 3rd floor without elevator (perhaps voted) unofficially divided into 3 apartments.

A 5 m2 corridor
A rented studio (soon available)
A two-room apartment with balcony
A vacant three-room apartment with sea view and balcony

The apartments have been rented for several years, and no walls have been broken.

The restoration work has already been voted on and paid for.

The condominium regulations state:
- The apartments and premises on the first floor may be divided or combined as each co-owner sees fit. Division approved at the general meeting.

Information on the risks to which this property is exposed is available on the Géorisques website:
Read more

Map may not show exact location

This property listing (ref: Awlr6orz34g3hj8m) is an advertisement supplied by French Gold Property and does not constitute property particulars. While aplaceinthesun.com (APITS Ltd.) requests all advertisers supply correct details, it does not carry out checks on the information supplied and cannot be held responsible for any inaccuracies. Aplaceinthesun.com recommends seeking independent legal advice prior to any overseas property purchase.
*Based on an exchange rate of 0.8731 from Euro to GBP. This rate is updated daily and is an indicative market rate supplied by A Place in the Sun Currency. Actual trading rates vary.