Premium New development

1 Bed Apartment for sale

Portimao, Algarve, Portugal

£392,876 *  [€450,000]

1 Bed Apartment for sale

Portimao, Algarve, Portugal

£392,876 *  [€450,000]

Property Details


  • Bedrooms: 1
  • Bathrooms: 1
  • Habitable space: 61.2 m2

Features


  • Air conditioning
  • Close to the beach
  • Garage
  • Furnished
  • Swimming pool
  • Sea View
  • Energy Certificate: C
Read more

Full Description


Set in one of the Algarves most popular coastal destinations, this development combines lifestyle, location, and investment potential in a prime beachfront setting. It offers a rare opportunity to acquire fully renovated apartments with excellent rental potential and year-round appeal.

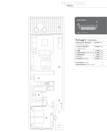
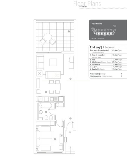
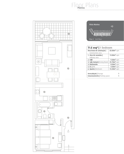
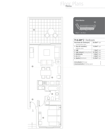
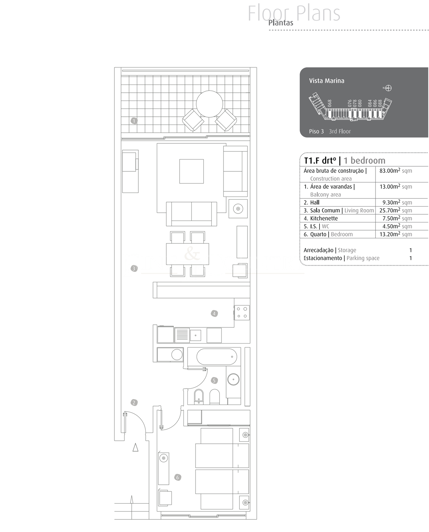
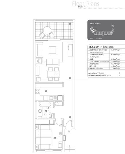
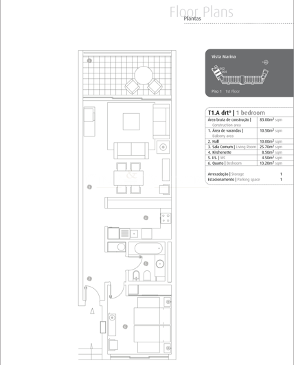
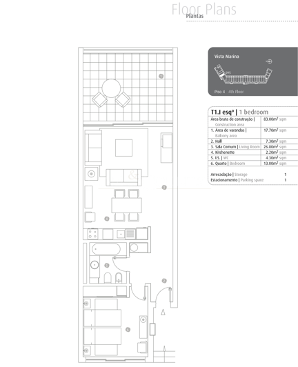
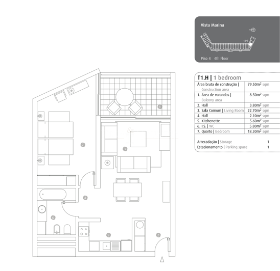
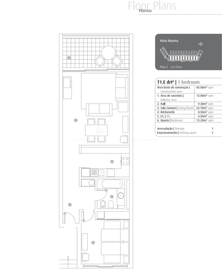
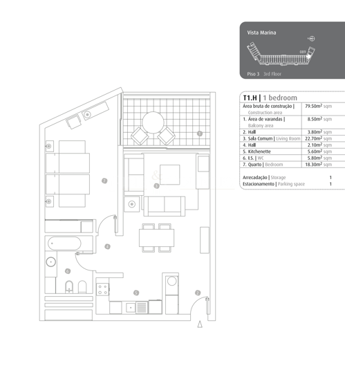
Located in Praia da Rocha, Portimão, overlooking the local marina, the development includes eight 1-bedroom apartments, each with 81 sqm of build area, including balconies, and two spacious 2-bedroom units measuring 111 sq m and 138 sq m, respectively.

Designed for comfort and convenience, the complex includes an outdoor swimming pool surrounded by landscaped gardens, a heated indoor pool, a full-service spa, a gym, and 24-hour reception.

All apartments feature generous outdoor space, private parking, and storage rooms and are sold fully furnished with modern finishes, new appliances, air conditioning, and double glazing.

Ideal as a full-time residence, a lock-up-and-leave holiday home, or an income-generating rental property. A rental return guarantee is also available for investors seeking steady yields.

* The feature(s) equipment(s) mentioned in this description are subject to verification and agreement between the vendors and buyers.

Fine & Country Algarve is part of the international network of F&C offices in over 300 locations worldwide, we have four offices in the Algarve covering the whole region from east to west. We also work closely with the Fine & Country offices elsewhere in Portugal and internationally. In the Algarve, Fine & Country has a vast portfolio of properties for sale and a dedicated team of professionals with in-depth market knowledge.

EPC: C - REF: FC980VC-CQ
Read more

Map may not show exact location

This property listing (ref: FC980VC-CQ) is an advertisement supplied by Fine and Country Algarve and does not constitute property particulars. While aplaceinthesun.com (APITS Ltd.) requests all advertisers supply correct details, it does not carry out checks on the information supplied and cannot be held responsible for any inaccuracies. Aplaceinthesun.com recommends seeking independent legal advice prior to any overseas property purchase.
*Based on an exchange rate of 0.8731 from Euro to GBP. This rate is updated daily and is an indicative market rate supplied by A Place in the Sun Currency. Actual trading rates vary.