Premium New development
Back to results

3 Bed Property for sale

Ražanac, Zadar, Croatia

£522,330 *  [€600,000]

3 Bed Property for sale

Ražanac, Zadar, Croatia

£522,330 *  [€600,000]

Property Details


  • Bedrooms: 3
  • Bathrooms: 4

Full Description


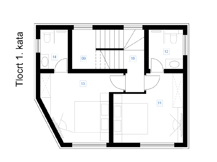
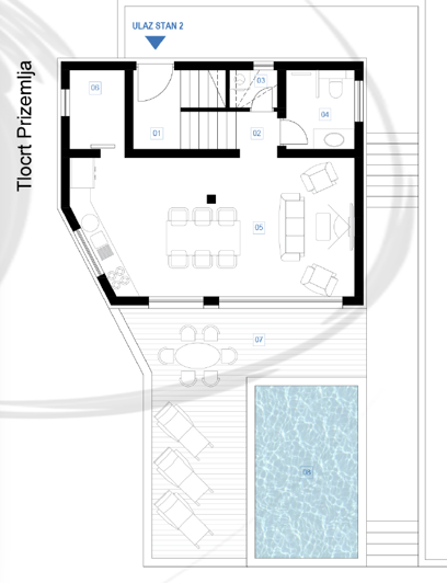
Luxury villa for sale just 270 meters from the Adriatic Sea and beautiful beaches in the peaceful village of Ražanac, near Zadar. This modern villa under construction is ideally located only 22 kilometers from the center of Zadar, offering a perfect balance of privacy, nature, and convenient access to all city amenities.The villa spans three floors, providing 160.61 m² of living space on a 352 m² plot. The ground floor features a spacious entrance hallway, two storage rooms, a bathroom, an additional guest toilet, and an open-plan kitchen with a dining area and living room. The living room opens onto a large terrace with a private pool and breathtaking sea views, perfect for enjoying the Mediterranean lifestyle.On the first floor, there are two stylish bedrooms, each with a private bathroom, terrace access, and a wardrobe, combining comfort with modern design. The second floor is dedicated to the master suite, which includes an en suite bathroom and a large terrace offering panoramic sea and surrounding landscape views.The villa is currently offered in its shell (roh-bau) condition, with structural works in progress, giving buyers the opportunity to customize interiors according to their preferences.This elegant property is an excellent opportunity for a luxury holiday home, a year-round residence, or a high-potential tourist rental investment in one of the most scenic areas of Dalmatia near Zadar. Ref: RE-LB-IRO-2670Overall additional expenses borne by the Buyer of real estate in Croatia are around 7% of property cost in total, which includes: property transfer tax (3% of property value), agency/brokerage commission (3%+VAT on commission), advocate fee (cca 1%), notary fee, court registration fee and official certified translation expenses. Agency/brokerage agreement is signed prior to visiting properties.Property advantages: Storage, Modern
Read more

Map may not show exact location

This property listing (ref: RE-LB-IRO-2670) is an advertisement supplied by ADRIONIKA CONSULTANCY and does not constitute property particulars. While aplaceinthesun.com (APITS Ltd.) requests all advertisers supply correct details, it does not carry out checks on the information supplied and cannot be held responsible for any inaccuracies. Aplaceinthesun.com recommends seeking independent legal advice prior to any overseas property purchase.
*Based on an exchange rate of 0.8705 from Euro to GBP. This rate is updated daily and is an indicative market rate supplied by A Place in the Sun Currency. Actual trading rates vary.