Premium New development

Plot for sale

Leivadia, Larnaca, Cyprus

£191,200 *  [€219,000]

Plot for sale

Leivadia, Larnaca, Cyprus

£191,200 *  [€219,000]

Property Details


  • Bedrooms: 0
  • Bathrooms: 0
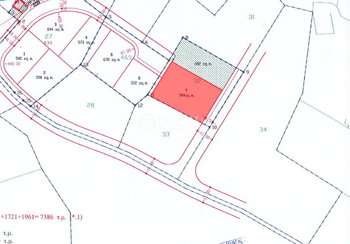
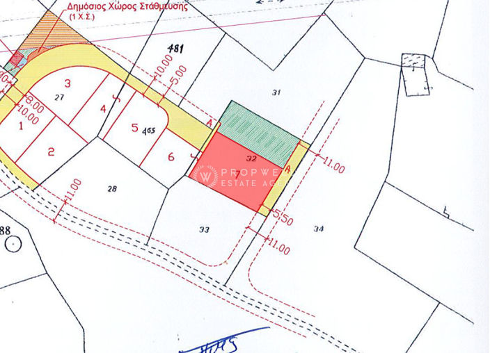
  • Plot size: 984 m2

Features


  • Easy access to main roads
  • Easy access to highway
  • Investment opportunity
  • Mountain view
  • Prime land
  • Walking distance to beach
  • Near bus route
  • Near amenities
Read more

Full Description


An exceptional investment opportunity in one of the most sought-after areas of Livadhia Mnciipality. This 984 sq.m. residential plot has a continious location, next to a green area and a pedestrian walkway, with a frontage of 30 meters and a depth of 39 meters, offering flexible design options for development with a north, east and west orientation.

Situated within Planning Zone Ka6, the plot benefits from a 90% building density, 50% coverage, and permission for up to 2 floors, making it an ideal choice for the development of an apartment complex or a private residence of high specifications.

Its location combines convenience with investment potential, offering proximity to schools, shops, and services, while maintaining excellent connectivity to Larnaca town and the airport.

This plot represents a unique opportunity for both private buyers and developers looking to capitalize on the growing demand for quality housing in Aradippou.

The plot fall within the followings details:

Residential Zone: Ka6, Building Density: 90%, Building Coverage: 50%, Maximum Height: 10 m,

Floors: 2

The extent of the plot is 984 sq.m..
Read more

Map may not show exact location

This property listing (ref: 5269) is an advertisement supplied by Propwell Estate Agent and does not constitute property particulars. While aplaceinthesun.com (APITS Ltd.) requests all advertisers supply correct details, it does not carry out checks on the information supplied and cannot be held responsible for any inaccuracies. Aplaceinthesun.com recommends seeking independent legal advice prior to any overseas property purchase.
*Based on an exchange rate of 0.8731 from Euro to GBP. This rate is updated daily and is an indicative market rate supplied by A Place in the Sun Currency. Actual trading rates vary.