Premium New development

2 Bed Property for sale

Loule, Algarve, Portugal

£60,241 *  [€69,000]

2 Bed Property for sale

Loule, Algarve, Portugal

£60,241 *  [€69,000]

Property Details


  • Bedrooms: 2
  • Bathrooms: 2
  • Plot size: 49 m2
  • Habitable space: 103 m2

Features


  • Terrace
  • Energy Certificate: free

Full Description


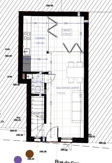
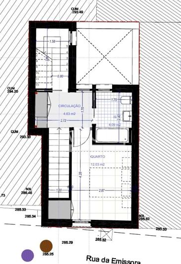
An opportunity to create a stunning, contemporary home in the heart of the authentic Algarve village of Benafim. This approved project allows for the construction of a stylish, three-story, two-bedroom village house complete with a private patio, replacing a current ruin.

With all architectural plans approved and ready for the construction phase to begin, this is the perfect chance to build your dream home or a highly desirable rental property without the lengthy and uncertain planning process.

This thoughtfully designed project blends modern living with the charm of a traditional village setting. The plans maximize space and light across three floors, creating a comfortable and functional home. The ground floor is designed for open-plan living, flowing out onto a private patioperfect for alfresco dining and enjoying the Algarve's famous climate. The upper floors will house two bedrooms, offering a peaceful retreat.

Benafim is a picturesque and tranquil village that offers an escape from the hustle and bustle of the main coastal resorts, while still being conveniently located. Nestled in the rolling hills of the central Algarve, it is renowned for its welcoming community, local cafes, and stunning natural surroundings.

This project represents a fantastic investment, whether you are looking for a permanent residence, a holiday getaway, or a profitable rental property. With the planning permissions already secured, you can bypass bureaucracy and start building your future in the sun immediately. Please note that this is an approved project and does not include the cost to construct the property.

- REF: 1001-2382
Read more

Map may not show exact location

This property listing (ref: 1001-2382) is an advertisement supplied by Azul Properties and does not constitute property particulars. While aplaceinthesun.com (APITS Ltd.) requests all advertisers supply correct details, it does not carry out checks on the information supplied and cannot be held responsible for any inaccuracies. Aplaceinthesun.com recommends seeking independent legal advice prior to any overseas property purchase.
*Based on an exchange rate of 0.8731 from Euro to GBP. This rate is updated daily and is an indicative market rate supplied by A Place in the Sun Currency. Actual trading rates vary.