Premium New development
Back to results

3 Bed Villa for sale

Pomarance, Pisa, Tuscany, Italy

£600,679 *  [€690,000]

3 Bed Villa for sale

Pomarance, Pisa, Tuscany, Italy

£600,679 *  [€690,000]

Property Details


  • Bedrooms: 3
  • Bathrooms: 4

Features


  • Villa
  • Land: 280000 sqm
  • Within 1 hour of an airport
  • Close to amenities

Full Description


Authentic Tuscan stone farmhouse, with land and views.

Set in a spectacular, quiet location with an amazing view and total privacy. Fully renovated and measuring approx 370 sqm in total, the property comprises a main home and two apartments, offering flexible accommodation for living and rental.

Accommodation comprises:

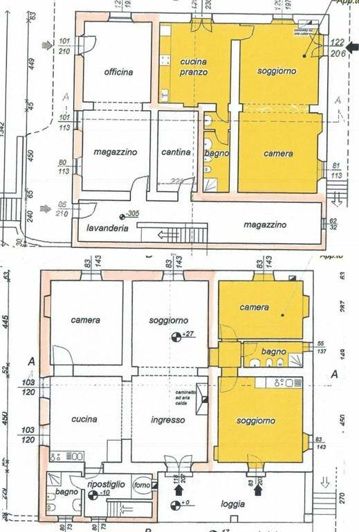
Main unit on the first floor - the owner's private home - made up of: portico, large open living area with brick arches comprising kitchen, dining area and sitting room, plus bathroom, 1 bedroom and storeroom. Stairs lead down to the ground floor where there is a large laundry room, a storage area and a wine cellar.

First floor apartment (42 sqm) comprising: portico, living room with kitchenette, 1 bedroom and bathroom; this unit could be connected with the main unit next door.

Ground floor apartment (70 sqm) with kitchen, living room with fire place and bedroom with brick arche and vaulted ceiling (it is an open space) and bathroom, opening onto the garden in front of the pool.

Next to the ground floor apartment there is a spacious room which is currently used as a big workshop, but which offers potential as a further apartment of sqm, or to increase the size of the ground floor apartment.

The house has been renovated preserving the antique original Tuscan features and character in a wonderful location.

The house is equiped with energy-saving systems; there are two hot-air fireplaces for heating, hot water is produced by electric boilers, and there is a 6kWp photovoltaic system on the roof of the house with a 7.5 kWh photovoltaic storage system; an electric line with 10 kWh three phase capacity connects the house with the national energy net; WiFi internet system and satellite TV.

There is also a 1000 l LPG gas tank for cooking.

A spring supplies 3000 litres of water per day with a 5000 litres collection tank, pump, water treatment for drinking, pool and gardening use with UV and water softener.

Outside the gardens include a barbeque area and a bowling alley, plus a swimming pool (18 sqm). An annex (30 sqm) services the pool with a technical room and bathroom; in the annex it is possible to install a sauna (this was originally in the owner's project).

Nearby there is a carport of 110 sqm used as shelter for agricultural equipment.

The property is immersed in the green of the woodlands: 28 ha (69 acres) surround the property including olive grove, orchard, cork oak grove, meadow and woodland. Walking down the hill, 400 m away from the house, you can reach the river Cornia. On clear days it is possible to see in the distance the line of the sea and the Elba Island. Cecina and Follonica, 2 of the most beautiful beaches on the Etruscan coast are just 40 km from the property. It's a perfect location to enjoy the beauty of nature, the silence, the sun, the views, the varied species of fauna and flora, and the area.

The property is currently used in part as a family home and the other two apartments are rented during the season (April to October).

Canneto (8 km) has an almost circular layout and is still surrounded by its fortified walls. In fact, the village of Canneto in ancient times was a castle used as a defensive stronghold between the Cecina Valley, the Cornia Valley and the Metalliferous Hills. The historic centre (inside which is the Pieve di S.Lorenzo with a 13th-century crucifix) is built on a small but striking rocky outcrop surrounded by cultivated terraces. A quarter of an hour drive you can visit the Biancane Geothermal Park in Monterotondo Marittimo and the MUBIA, the Biancane Geomuseum, a very special place that will take you to another planet. In the area there is a popular and unique brewery: the craft beers of Vapori di Birra, the first Craft Brewery in Italy that uses geothermal steam as the primary source of energy for the industrial process. The plant has been designed and modified to take advantage of the potential offered by geothermal energy, and allows maximum energy savings in heat production and minimal environmental impact.

Canneto is also well known for the winery of "Tenuta di Canneto", with gentle hills overlooking the Mediterranean Sea, lush vineyards, centuries-old woodlands and thousand-year-old olive trees. The Canneto Estate tells a story of beauty and authenticity, with wines born from a generous land and passionate work, the reflection of a unique and fascinating territory.

Distances: Massa Marimttima (30 km), Monteverdi Marittimo (14 km), Canneto (10 km), Pomarance (30 km), Volterra (50 km), Pisa (98 km), Siena (80 km).

Some images may have been enhanced using AI technology
All particulars are given in good faith and are believed to be correct, but they do not form part of any offer or contract
Read more

Map may not show exact location

This property listing (ref: casalesanvalentino2423) is an advertisement supplied by Larchitrave Immobiliare and does not constitute property particulars. While aplaceinthesun.com (APITS Ltd.) requests all advertisers supply correct details, it does not carry out checks on the information supplied and cannot be held responsible for any inaccuracies. Aplaceinthesun.com recommends seeking independent legal advice prior to any overseas property purchase.
*Based on an exchange rate of 0.8705 from Euro to GBP. This rate is updated daily and is an indicative market rate supplied by A Place in the Sun Currency. Actual trading rates vary.