Premium New development

2 Bed House for sale

Castro Marim, Algarve, Portugal

£76,393 *  [€87,500]

2 Bed House for sale

Castro Marim, Algarve, Portugal

£76,393 *  [€87,500]

Property Details


  • Bedrooms: 2
  • Bathrooms: 1
  • Plot size: 106.6 m2
  • Habitable space: 80.3 m2

Features


  • Double Glass
  • Energy performance certificate – F

Full Description


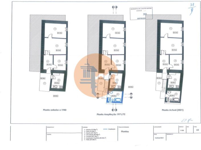
Single-Story House for Renovation with Approved Project - Azinhal, Castro Marim
We present this single-story house for renovation, located in the heart of the picturesque village of Azinhal, in the parish of Castro Marim. The property is sold as a set of two urban properties:
A single-story house measuring 87 m², currently with two bedrooms, a living room with an entrance, a kitchen, and a bathroom with separate entrances.
The urban lot measures 99.60 m², with 12.20 m² of covered area and the remainder being a patio.
Approved Project
The key feature of this property is the project already approved by the City Council, ready for obtaining the building permit. The project includes a functional and modern reorganization of the house, consisting of:
- Entrance courtyard (2.20 m²)
- Entrance hall (2.70 m²)
- Kitchen (7.38 m²)
- Large living room (13.65 m²)
- 2 bedrooms (9.25 m² and 12.65 m²)
- Bathroom (6.35 m²)
- Versatile additional area (6.20 m²), ideal for storage, laundry, or office
- Circulation (5.10 m²)
The rooms were designed to ensure natural light and ventilation, with strategically placed windows. The roof maintains the traditional features of the region, with a gabled roof.
Surroundings
The location combines rural tranquility with proximity to various amenities:
Azinhal - a typical Algarve village, with grocery stores, cafes, and local services.
Castro Marim - just a 10-minute drive, with supermarkets, public services, shops, and schools.
Vila Real de Santo António - about 15 minutes, border town with a marina, hospital, train station, and ferry to Ayamonte (Spain).
Beaches - the famous beaches of the Eastern Algarve are within walking distance:
Praia Verde: 15 minutes
Monte Gordo: 20 minutes
Vila Real de Santo António Beach: 20 minutes
Golf - proximity to the Castro Marim and Quinta do Vale golf courses (less than 10 minutes).
Faro Airport - 45 minutes via the A22.
Opportunity
A property with enormous potential for appreciation, whether for a home, second home, or investment for tourist rentals.
Energy Rating: F
#ref: CS-LI-CT-92601
Read more

Map may not show exact location

This property listing (ref: CS-LI-CT-92601) is an advertisement supplied by Around the Sun Lda and does not constitute property particulars. While aplaceinthesun.com (APITS Ltd.) requests all advertisers supply correct details, it does not carry out checks on the information supplied and cannot be held responsible for any inaccuracies. Aplaceinthesun.com recommends seeking independent legal advice prior to any overseas property purchase.
*Based on an exchange rate of 0.8731 from Euro to GBP. This rate is updated daily and is an indicative market rate supplied by A Place in the Sun Currency. Actual trading rates vary.