Premium New development

4 Bed Villa for sale

Alhaurín el Grande, Malaga, Andalucia, Spain

£868,692 *  [€995,000]

4 Bed Villa for sale

Alhaurín el Grande, Malaga, Andalucia, Spain

£868,692 *  [€995,000]

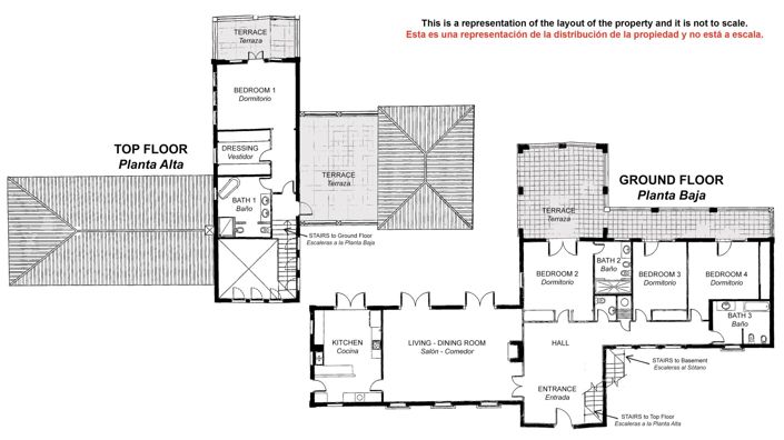
Property Details


  • Bedrooms: 4
  • Bathrooms: 3
  • Plot size: 1500 m2
  • Habitable space: 440 m2

Full Description


Outstanding villa with fantastic views, 4 bedrooms, pool and garage, located within walking distance of the town. Located in a quiet residential area this impressive villa has it all. As you enter the property through electric entrance gates you are immediately greeted by the stunning pool area and Tiki Hut style summer kitchen and bar. This makes an excellent entertaining area. The main door leads you into a grand entrance hall with double height ceiling. Upstairs is the master bedroom suite with full bathroom, dressing room, very spacious bedroom plus a balcony and a side terrace, both with incredible views. On the main floor there are 3 bedrooms, 2 bathrooms and WC. The third bedroom could be used as a guest annex as it has a living room with the bedroom upstairs and doors leading directly out to the terrace. The main living area is a huge and bright, dual aspect living-dining room with fireplace and leads to the luxurious fitted kitchen with central island, which in turn leads out to the pool and entertaining area. The lower ground floor has a 96m² basement, large enough for several cars or to covert to additional living space. There is also a machine room housing the technical equipment for the house. There are solar panels which run the underfloor heating, domestic hot water and the pool, depending on the time of year. The property has been built with first class materials and in addition to the underfloor heating, there is hot and cold air-conditioning throughout.
Read more

Map may not show exact location

This property listing (ref: MLSC435248) is an advertisement supplied by Your Dream Home Spain and does not constitute property particulars. While aplaceinthesun.com (APITS Ltd.) requests all advertisers supply correct details, it does not carry out checks on the information supplied and cannot be held responsible for any inaccuracies. Aplaceinthesun.com recommends seeking independent legal advice prior to any overseas property purchase.
*Based on an exchange rate of 0.8731 from Euro to GBP. This rate is updated daily and is an indicative market rate supplied by A Place in the Sun Currency. Actual trading rates vary.