Premium New development

2 Bed Apartment for sale

Lisbon, Lisbon and Lisbon Coast, Portugal

£257,552 *  [€295,000]

2 Bed Apartment for sale

Lisbon, Lisbon and Lisbon Coast, Portugal

£257,552 *  [€295,000]

Property Details


  • Bedrooms: 2
  • Bathrooms: 1

Features


  • Great Price
  • High Rental Demand
  • Make it your own
  • Project Approved
  • Renovation project

Full Description


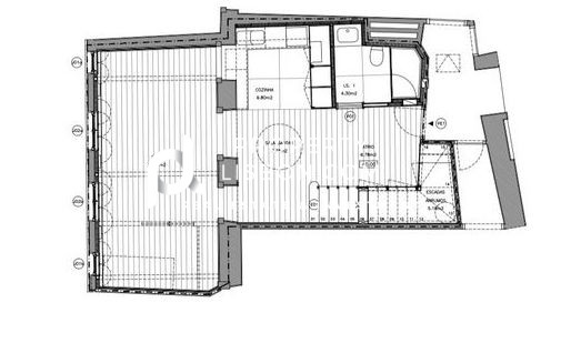
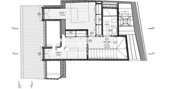
Project approved Alfama Lisbon Two-Bedroom Apartment for Renovation.

This property presents a rare opportunity to invest in a unique apartment in Lisbon's historic Alfama district. Set within a pre-Pombalino building, the apartment comes with an approved project for refurbishment and extension, which will expand the usable space from 60 square meters to 103 square meters, blending modern amenities with historic charm.

Positioned on the second floor, the current 60-square-meter layout features an open-space design that maximizes natural light. The proposed renovation plans aim to create a cohesive environment that includes two living rooms, a kitchen, and a bathroom, resulting in a functional and spacious living area.

The approved extension introduces an additional 40-square-meter attic space, accommodating two comfortable bedrooms equipped with dormer windows that provide panoramic views of the River Tagus. This floor will also include a second bathroom, enhancing both privacy and convenience.

Located just a short walk from Sao Jorge Castle, the property enjoys a prime location with easy access to historical landmarks, public transportation, and a variety of traditional restaurants, allowing residents to immerse themselves in the vibrant atmosphere of Alfama.

This apartment is ideal for those seeking a living space that combines historical significance with modern living. It's an opportunity not to be missed!

* Beds: 2
* Baths: 1
* m2: 103
* Price Per m2: 2,864.08€
* District: Alfama
* Type: Apartment
* Property ID #: PL007223
Read more

Map may not show exact location

This property listing (ref: 15297-PL007223) is an advertisement supplied by Property Lisbon.com and does not constitute property particulars. While aplaceinthesun.com (APITS Ltd.) requests all advertisers supply correct details, it does not carry out checks on the information supplied and cannot be held responsible for any inaccuracies. Aplaceinthesun.com recommends seeking independent legal advice prior to any overseas property purchase.
*Based on an exchange rate of 0.8731 from Euro to GBP. This rate is updated daily and is an indicative market rate supplied by A Place in the Sun Currency. Actual trading rates vary.