Premium New development
Back to results

7 Bed Farmhouse for sale

Ugento, Lecce, Apulia, Italy

£190,650 *  [€219,000]

7 Bed Farmhouse for sale

Ugento, Lecce, Apulia, Italy

£190,650 *  [€219,000]

Property Details


  • Bedrooms: 7
  • Bathrooms: 4
  • Plot size: 4800 m2
  • Habitable space: 900 m2

Features


  • Historic building from the 1700s
  • Possibility of creating an excellent characterist
  • Large outdoor and indoor spaces
  • 10km from the sea

Full Description


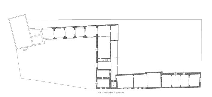
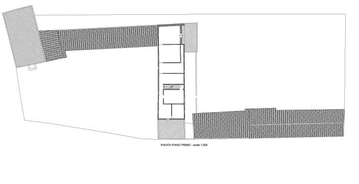
Masseria In the countryside of Ugento, located on the provincial road that leads from the Messapian town to the Municipality of Casarano.
This structure, called Masseria Coloni, is in very bad structural conditions therefore it will be necessary to carry out a static consolidation on one side and a faithful reconstruction on the other. The original covered area is about 900 square meters, which are developed on two levels, ground floor and first floor. The ground floor was intended for deposits, sheds, stables and the home of the farmer, who took care of the management of the land property; the first floor instead housed the owner's house who moved from the village during the harvesting period to supervise the harvest. The surrounding land extends for about 4,500 square meters. a manor house. Possibility of accessing regional loans, partly non-repayable and partly at a subsidized rate
Salento Agency can assist you during the stages of completing the work listed above, thanks to its collaboration with local companies and craftsmen.

UGENTO
Ugento, located in the Salento region, is an enchanting Italian destination. Characterised by golden sandy beaches and crystal-clear waters, this coastal resort offers breathtaking natural beauty. Its historical centre, with cobbled streets, ancient churches and historic palazzi, tells a story rich in culture and tradition. The museums and archaeological sites present highlight the historical importance of the area. The local cuisine is a riot of Mediterranean flavours, with dishes based on fresh fish and local ingredients. Here, history, nature and culture intertwine, offering a fascinating experience to those who visit.
Read more

Map may not show exact location

This property listing (ref: 0273UG ) is an advertisement supplied by Salento Agency and does not constitute property particulars. While aplaceinthesun.com (APITS Ltd.) requests all advertisers supply correct details, it does not carry out checks on the information supplied and cannot be held responsible for any inaccuracies. Aplaceinthesun.com recommends seeking independent legal advice prior to any overseas property purchase.
*Based on an exchange rate of 0.8705 from Euro to GBP. This rate is updated daily and is an indicative market rate supplied by A Place in the Sun Currency. Actual trading rates vary.