Premium New development
Back to results

Commercial for sale

Mafra, Lisbon and Lisbon Coast, Portugal

£219,378 *  [€252,000]

Commercial for sale

Mafra, Lisbon and Lisbon Coast, Portugal

£219,378 *  [€252,000]

Property Details


  • Bedrooms: 0
  • Bathrooms: 1
  • Habitable space: 240 m2

Features


  • Double Glass
  • AC
  • Energy performance certificate – D

Full Description


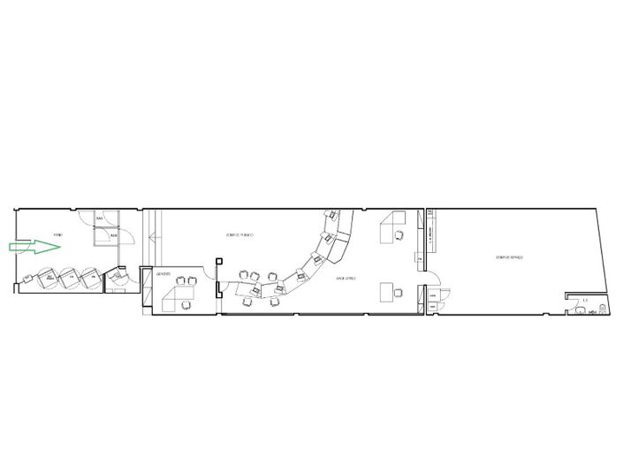
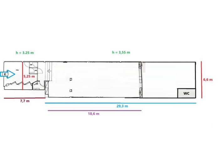
Functional store with more than 230m2 in the centre of Malveira, Mafra.
Commercial store, which used to function as a bank branch, has a rectangular shape with approximate dimensions of 37 x 6.7 meters. Excellent ceiling heights, between 3.25 meters at the entrance, and 3.6 meters inside the store.
It has air conditioning, good electrical power,...
Excellent location in the centre of Malveira, next to the train station (CP), in a residential area well served by commerce, services and transport. The motorway is only 2 minutes away.
Excellent centrality, close to Mafra, just 15 minutes from Ericeira, 15 minutes from Loures, 20 minutes from Lisbon and Torres Vedras.
Come and meet and develop His activity...
Energy Rating: D
#ref: BOT_4007
Read more

Map may not show exact location

This property listing (ref: BOT_4007) is an advertisement supplied by Carpe Domus and does not constitute property particulars. While aplaceinthesun.com (APITS Ltd.) requests all advertisers supply correct details, it does not carry out checks on the information supplied and cannot be held responsible for any inaccuracies. Aplaceinthesun.com recommends seeking independent legal advice prior to any overseas property purchase.
*Based on an exchange rate of 0.8705 from Euro to GBP. This rate is updated daily and is an indicative market rate supplied by A Place in the Sun Currency. Actual trading rates vary.