Premium New development

Commercial for sale

Oeiras, Lisbon and Lisbon Coast, Portugal

£344,858 *  [€395,000]

Commercial for sale

Oeiras, Lisbon and Lisbon Coast, Portugal

£344,858 *  [€395,000]

Property Details


  • Bedrooms: 0
  • Bathrooms: 3
  • Plot size: 110 m2
  • Habitable space: 400 m2

Features


  • Double Glass
  • Energy performance certificate – C

Full Description


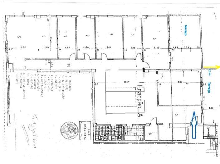
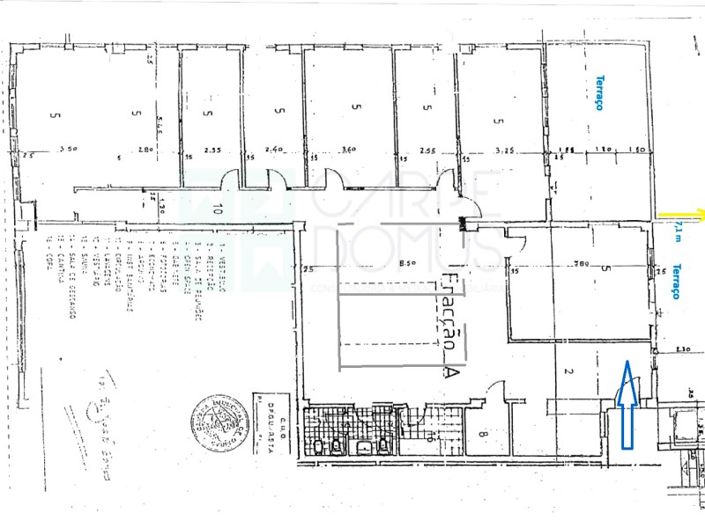
Spacious and functional office of 290m2, with 2 large terraces and 10 parking lots, in Carnaxide, Oeiras.
Office on the ground floor, consisting of halls, 9 rooms and offices, pantry, a double bathroom, guest bathroom. It has 2 large private front terraces.
There are 10 parking spaces marked inside the lot.
Property in need of modernisation works. It has spotlights on the ceiling, air conditioning, ... Space with excellent luminosity with 3 fronts, and skylight.
Very central location in Praceta das Fábricas in Carnaxide, between Lisbon and Oeiras. Good road access (e.g. to the A5 motorway), close to public transport, shops and services.
Come and meet and expand His activity...
Energy Rating: C
#ref: OFI_3913
Read more

Map may not show exact location

This property listing (ref: OFI_3913) is an advertisement supplied by Carpe Domus and does not constitute property particulars. While aplaceinthesun.com (APITS Ltd.) requests all advertisers supply correct details, it does not carry out checks on the information supplied and cannot be held responsible for any inaccuracies. Aplaceinthesun.com recommends seeking independent legal advice prior to any overseas property purchase.
*Based on an exchange rate of 0.8731 from Euro to GBP. This rate is updated daily and is an indicative market rate supplied by A Place in the Sun Currency. Actual trading rates vary.