Premium New development
Back to results

4 Bed Apartment for sale

Siracusa, Syracuse, Sicily, Italy

£204,579 *  [€235,000]

4 Bed Apartment for sale

Siracusa, Syracuse, Sicily, Italy

£204,579 *  [€235,000]

Property Details


  • Bedrooms: 4
  • Bathrooms: 4
  • Habitable space: 250 m2

Features


  • Number of levels
  • Central Heating
  • Air Conditioning
  • Terrace
  • Balcony
  • Sea Views
  • Panoramic view
Read more

Full Description


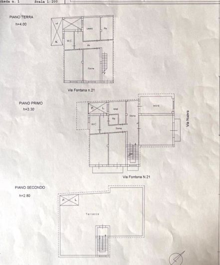
Well presented 4 bedroom townhouse in the seaside town of Avola on the East Coast of Sicily. This lovely property that has been split in to two units. It is just over 1 hour's drive to Catania International airport and close to the historic city of Siracusa.

The house is comprised as follows: accessed from a small door on the street with an entrance shared with the first floor. Here there is a staircase leading to the upper floor and an entrance door on the ground floor with an apartment consisting of a kitchen, a bedroom, laundry room, utility room, a bathroom and direct access to the two garages - one of 30 m2 and the other of approximately 16 m2.

The upper floor is not connected to the ground floor and is entered via a staircase from the shared landing. It is distributed with balconies in each room, and is very bright and comfortable with two bathrooms, a kitchen, three bedrooms, a living room and a closet. Above is a terrace extending around the entire perimeter of the first floor and accessed from the common staircase to the landing.

The house is in good condition although it needs renovation and some internal customization. The doors and window frames are made of wood and in good condition.

This would make an ideal holiday home or also an excellent investment for those who want to provide holiday homes, as it provides the possibility of having separate apartments with a good central location.

The Dolce Vita’ is your one-stop shop for all your Sicilian property buying requirements. We have a selection of apartments and villas in all areas of Sicily to meet your personal tastes and budget.  We are not agents ourselves, but work closely with a number of government accredited local Sicilian estate agents.

We provide our professional services including ‘Find a Property’, negotiation and bi-lingual language support at no additional cost to what any buyer would have to pay a local agent when purchasing a property in Italy.  In effect, our customer focused, friendly and efficient bi-lingual service is free.

Please contact us to see how we can make your Sicilian property dreams come true.
Read more

Map may not show exact location

This property listing (ref: ALPCARREMX10011) is an advertisement supplied by The Dolce Vita and does not constitute property particulars. While aplaceinthesun.com (APITS Ltd.) requests all advertisers supply correct details, it does not carry out checks on the information supplied and cannot be held responsible for any inaccuracies. Aplaceinthesun.com recommends seeking independent legal advice prior to any overseas property purchase.
*Based on an exchange rate of 0.8705 from Euro to GBP. This rate is updated daily and is an indicative market rate supplied by A Place in the Sun Currency. Actual trading rates vary.