Premium New development
Back to results

3 Bed House/Villa for sale

Crescent Beach, Bequia, St Vincent and Grenadines

£1,642,649 *  [$2,200,000]

3 Bed House/Villa for sale

Crescent Beach, Bequia, St Vincent and Grenadines

£1,642,649 *  [$2,200,000]

Property Details


  • Bedrooms: 3
  • Bathrooms: 4
  • Plot size: 4047 m2
  • Habitable space: 240 m2

Features


  • Exclusive contemporary villa
  • Best views on Bequia
  • Easy open plan living
  • 3 bedrooms
  • Infinity pool

Full Description


A magnificent, precisely detailed & fully furnished and equipped villa. Comprises 2 bedroom main house and 1 bedroom guest house linked by a terrace. Designed by award winning London architects, Kilburn Nightingale.
Located high on Ocean Ridge, affording constant cooling breezes, the property has 180 degree panoramic views over the ocean, neighbouring islands and Bequia itself. Ocean Ridge is a well covenanted private estate on Bequia and offers unparalleled quality control, including concrete road access.
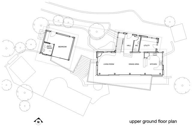
Mainhouse :
Upstairs - Entrance with cloakroom steps down to open-plan living/dining/kitchen and out to balcony. Utility room.
Downstairs – Hallway with access to lower balcony. 2 large bedrooms with access to terrace and separate shower room. Master bedroom comprises ensuite bath and shower room and large closet/dressing room. Large store room.
Guest house
Large bedroom, bathroom & balcony.
All bedrooms have air conditioning and fans.
Outside
Large deck, infinity pool (9m x3m), shower, bbq & bar. Exterior lighting and power. Store room.
Green credentials include a water recycling plant for garden watering, photovoltaics to run pool and heat water. All water collected from the roofs and stored in two underground tanks holding a total of 35,000 gallons.
Generator for unexpected power outages
Security system to allow for remote opening of gate and monitoring if unoccupied.
The Winchester could be either a comfortable permanent home or a great investment as a holiday home with fantastic rental potential. Sadly, the owners (who developed the property) are selling because of unexpected change in personal circumstances.

Access to Bequia and SVG will be greatly improved with the new Virgin flight from London directly to St Vincent.
Read more

Map may not show exact location

This property listing (ref: WinbeQ1) is an advertisement supplied by a private seller and does not constitute property particulars. While aplaceinthesun.com (APITS Ltd.) requests all advertisers supply correct details, it does not carry out checks on the information supplied and cannot be held responsible for any inaccuracies. Aplaceinthesun.com recommends seeking independent legal advice prior to any overseas property purchase.
*Based on an exchange rate of 0.8705 from Euro to GBP. This rate is updated daily and is an indicative market rate supplied by A Place in the Sun Currency. Actual trading rates vary.