Premium New development
Back to results

3 Bed Villa for sale

Chianni, Pisa, Tuscany, Italy

£343,867 *  [€395,000]

3 Bed Villa for sale

Chianni, Pisa, Tuscany, Italy

£343,867 *  [€395,000]

Property Details


  • Bedrooms: 3
  • Bathrooms: 2

Features


  • Villa
  • Land: 20000 sqm
  • Within 1 hour of an airport
  • Close to amenities

Full Description


Charming, authentic country house with garden and land, set in the pretty countryside around the lovely Tuscan town of Chianni.

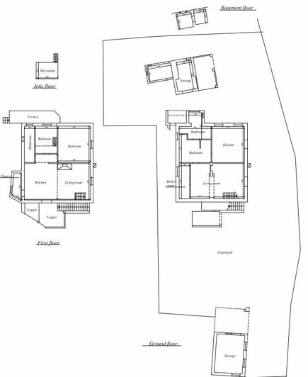
The house has three bedrooms and is in good order throughout, with around 20,000 sqm (5 acres) of land, within walking distance of Chianni, immersed in the tranquility of the Tuscan rolling hills. Easy access through a well-maintained unpaved road (strada bianca) of 500 meters and with plenty of private parking. The accommodation is currently in two independent units, perfect for home and rental, or it could be easily joined to form a spacious family home. The main area is accessed with an external staircase to the first floor with a terrace at the top of the stairs, which is just the perfect spot for dining outdoors. Going inside, the living area comprises a large open-space kitchen (with pantry) and living room with a fireplace positioned on the centre of the room, and further there are two bedrooms, one with a mezzanine and balcony, and one family bathroom. An internal staircase leads down into a second large living area which opens onto to the garden and which could also be used as a third bedroom. On the ground floor there is a self-contained unit with kitchen, living room, bedroom and large bathroom.

The property is surrounded by a large garden and land with olive trees, meadows and woodland of 20,000 sqm (5 acres). There is a large storage room with a covered portico in the garden and two outbuildings comprising in total three rooms, which offer additional possibilities. The heating system works with an automatic pellet boiler which provides hot water and is suitable to be connected to a solar panel. The windows are double-glazed.

Chianni, nearby, in the heart of Tuscany, is a pretty well-kept and perfectly Tuscan town, coated in pots of red geraniums and full of cobbled narrow lanes which open onto intimate little piazzas: stunning churches are around every corner. The ancient little town rises above the rolling Tuscan hills, so there are open views in all directions. There are good services including shops, banks, restaurants/pizzeria, post office, friendly cafes and interesting events throughout the year. The most important of these are the olive oil festival and the wild boar festival. Pontedera is an interesting town and has the main train station on the Pisa- Florence line. This authentic house is ideally located and transport links are good.

Chianni sits within the area of Valdera in central Tuscany between Pisa and Florence. This colourful landscape of rolling hills is dotted with medieval villages, castles and cobbled lanes which are flanked by tall dark green cypress trees. The area is scattered with historical towns and medieval villages and the landscape is made up of golden meadows of wheat, vineyards, olive groves and fields of sunflowers. Meandering through the countryside of Valdera you feel the vestiges of the mysterious Etruscan civilisation. Here in Lajatico, Andrea Bocelli, the world renowned tenor, created the famous Teatro di Silenzio (the Theatre of Silence) where a natural amphitheatre creates a breathtaking setting perfect for musical events. In the summer months Bocelli performs a special concert each year alongside internationally famous musicians, which attracts a global audience. Nearby is also Casciana Terme, which has thermal waters and spa facilities and is a pretty town with piazzas and cafés serving the local wine. The città d’arte (cities of art) include Volterra, San Gimignano, Palaia and Florence all full of art and architecture to explore, are all within easy reach.

Distances: Chianni 2km an easy walk, Lajatico (Teatro del Silenzio) 15 km, Pontedera (trains) 20 km, Palaia 25 km, Castelfalfi (Golf and Spa resort) 30 km, Volterra 35 km, Cecina (beaches) 35 km, San Gimignano 40 km, Pisa (airport) 40 km, Lucca 60 km, Florence 80 km, Siena 80 km.
Read more

Map may not show exact location

This property listing (ref: casalececilia1592) is an advertisement supplied by Larchitrave Immobiliare and does not constitute property particulars. While aplaceinthesun.com (APITS Ltd.) requests all advertisers supply correct details, it does not carry out checks on the information supplied and cannot be held responsible for any inaccuracies. Aplaceinthesun.com recommends seeking independent legal advice prior to any overseas property purchase.
*Based on an exchange rate of 0.8705 from Euro to GBP. This rate is updated daily and is an indicative market rate supplied by A Place in the Sun Currency. Actual trading rates vary.